Penaluna Part IV

Penaluna Part IV, 2024.
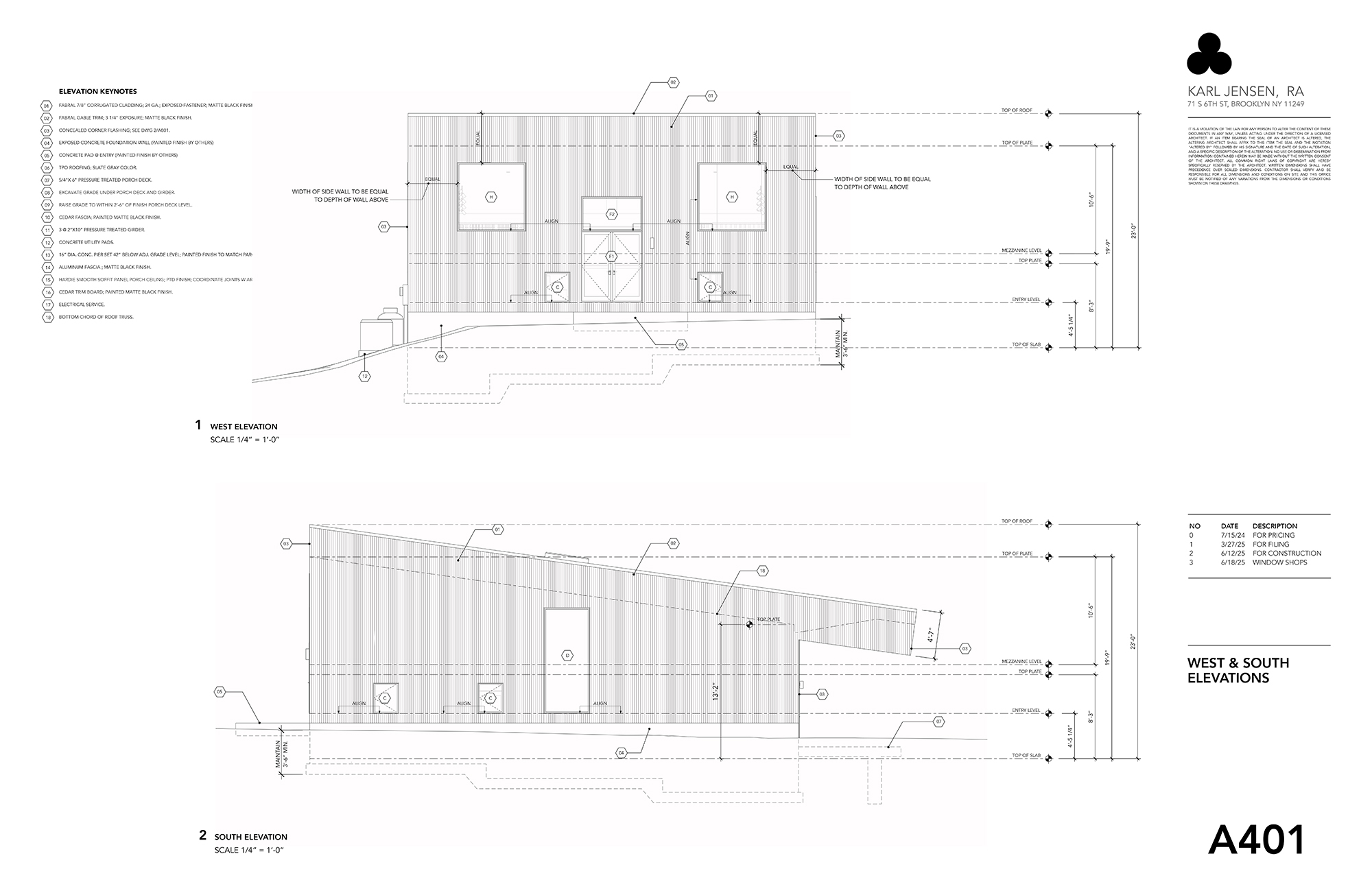
Design development and construction drawings for artists' studio.